NUOVA IMMOBILIARE
di Fabio Serralunga
Via Governolo 9/D
10128 Torino (TO)
P.IVA: 12028540016
ISCRIZIONE RUOLO: 7521 Torino

COLLEGNO (TO) – VILLA INDIPENDENTE SU 4 LATI
A poca distanza dal confine di Torino, percorrendo l’asse della metro Paradiso-Leumann di Corso Francia, proponiamo in VENDITA, in Via Antica di Grugliasco, una VILLA in PARAMANO LIBERA SU 4 LATI, in buone condizioni interne.
Collocata in prossimità della futura nuova fermata della metropolitana, attualmente in costruzione, la proprietà si posiziona in un contesto residenziale, estremamente comodo a tutti i principali servizi che la zona ha da offrire e grazie alla totale INDIPENDENZA di cui gode, risulta essere un perfetto connubio di privacy e comfort.
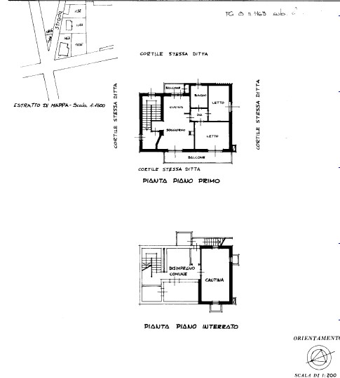
Sviluppata su due livelli, la soluzione presenta ingressi separati, collegati tra loro da una scala interna: al piano terra un primo appartamento di circa 85 mq ed al piano primo un secondo appartamento di altrettanti circa 90 mq. Questa comoda suddivisione interna consente di poter giocare con tutti gli spazi, permettendo la realizzazione di una comoda bifamiliare.
L’unità abitativa al piano terra è disposta in ampia zona giorno con cucinotto e ingresso separato, con accesso diretto al giardino, due camere da letto e un bagno finestrato.
L’unità abitativa al piano primo è speculare alla precedente, con ampia sala e cucina, due camere da letto, bagno e disimpegno.
Il piano è inoltre caratterizzato dalla presenza di un terrazzino, oltre che di un balcone, entrambi dotati di tende da sole.
Tutti gli ambienti sono estremamente luminosi, dotati di impianto di climatizzazione e affacciano sul GIARDINO PRIVATO con PATIO TERRAZZATO.
La totale assenza di spese gestionali e la presenza del riscaldamento autonomo consentono una gestione autonoma e completa di tutti i costi.
Completano infine questa proposta immobiliare:
– taverna con camino, forno a legna e cucina attrezzata
– cantina e sottotetto adibiti a locali sgombero
– 3 posti auto interni alla proprietà.
Richiesta: Euro 449.000
Per VENDERE e COMPRARE casa
Nuova Immobiliare
Via Governolo 9/D – Torino
337.151.85.75
011.59.34.86
www.nuova-immobiliare.com
info@nuova-immobiliare.com
https://www.facebook.com/Nuova-Immobiliare-157063284824999/