
SAN DONATO –
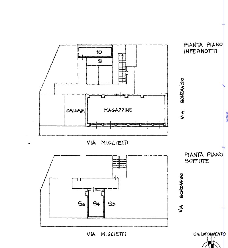
VIA MIGLIETTI
MAGAZZINO IN VENDITA
A due passi da Piazza Statuto, in una posizione estremamente commerciale, ricca di servizi e attività commerciali di vario tipo, disponiamo in VENDITA di un AMPIO MAGAZZINO di circa 90 mq.
L’immobile si sviluppa su un unico ambiente, disposto in pianta rettangolare e si presenta in buone condizioni interne.
Accesso da androne condominiale e da cortile interno.
Categoria catastale: C/2
Richiesta: Euro 9.000.
Per VENDERE e COMPRARE casa
Nuova Immobiliare
Via Governolo 9/D – Torino
337.151.85.75 – 011.59.34.86
www.nuova-immobiliare.com
info@nuova-immobiliare.com
Facebook: Nuova Immobiliare



















































